RD 4kk s výhledem na zámek, Křivoklátsko


Popis nemovitosti

Prodej rodinného domu 4+kk, Nižbor – zahrada, bazén, výhled na zámek

Představte si bydlení v místě, kde se každý den probouzíte s výhledem na zámek a okolní přírodu chráněné krajinné oblasti Křivoklátsko. Právě zde, v oblíbené obci Nižbor, nabízíme k prodeji pěkný rodinný dům o dispozici 4+kk se slunnou zahradou, bazénem a terasou s jedinečným výhledem. Místo, které spojuje klid přírody, prostor pro rodinný život a zároveň rychlou dostupnost do Berouna i Prahy.

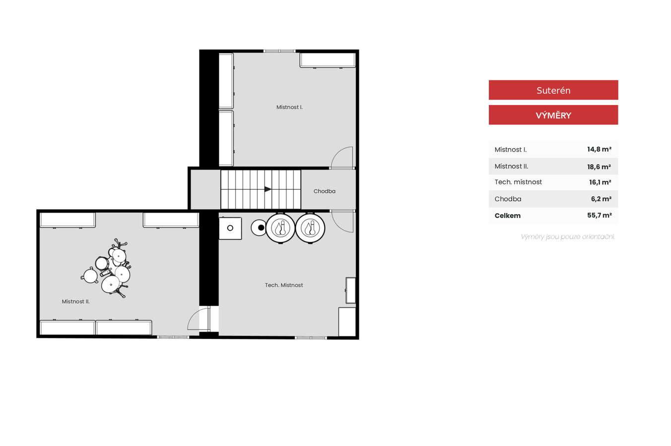
Patrový dům prošel v r. 2015 rekonstrukcí. Díky velkým oknům je interiér příjemně prosvětlený. Okna zároveň přirozeně propojují obytný prostor s rovinatou zahradou, kde se nachází bazén, prostorná terasa s výhledem na zámek a okolní krajinu, venkovní posezení s krbem a kryté parkovací stání pro dvě auta. Detailní dispozice domu je k dispozici v přiloženém půdorysu.

Dům nabízí také velmi praktické technické zázemí, které zahrnuje odhlučněné nahrávací studio, dílnu a kotelnu vybavenou kombinovaným kotlem na plyn a dřevo. Měsíční náklady na vytápění: plyn 310 Kč, dřevo 2.080 Kč. Elektřina 2.270 Kč.  PENB v přípravě, údaj bude aktualizován.

Jednou z největších předností této nemovitosti je její jedinečná poloha. Dům se nachází v bezprostřední blízkosti zámku a na okraji CHKO Křivoklátsko, která nabízí nespočet možností pro procházky, cyklistiku i další volnočasové aktivity.

Přímo od domu můžete vyrazit do lesů nebo se vydat malebnou cestou až k hradu Křivoklát. Každodenní bydlení zde tak přináší ideální kombinaci klidu, přírody a prostoru pro aktivní život, přičemž veškerá potřebná občanská vybavenost je v dosahu. Praha je dostupná přibližně do 30 minut jízdy, Beroun je vzdálený 8 km.

Neváhejte nás kontaktovat pro bližší informace. Těšíme se s vámi na setkání.

 

Popis nemovitosti
NemovitostRodinný dům na PRODEJ Energetická náročnostG - Mimořádně nehospodárná
Velikost4+KK Užitná plocha170 m²
Zastavěná plocha116 m² Velikost pozemku1 193 m²
Typ domuPatrový Typ stavbySamostatný
Druh budovyCihlový Počet podlaží budovy2
VodaVeřejný vodovod Stav objektuDobrý
BazénAno SklepAno
Sklep plocha56 m² TerasaAno
Parkování u objektuAno Elektoinstalace400/230V
OdpadKanalizace
Topení krb/krbová kamna tuhá paliva, ústřední plynové, ústřední tuhá paliva
Fotka - Pavel Neoral
Pavel Neoral

Přidáno 09. 03. 2026

  • AKTIVNÍ
  • prodej
  • Rodinné domy
17 999 000,- Kč

Nižbor, K Zámku

  • Nižbor, K Zámku

Zajímá vás tato nemovitost?


Podobné nemovitosti


Bárnetka u Vlašimi
14 900 000,- Kč
  • AKTIVNÍ
  • prodej
  • Rodinné domy

Vlašim

RD 4kk s výhledem na zámek, Křivoklátsko
17 999 000,- Kč
  • AKTIVNÍ
  • prodej
  • Rodinné domy

Nižbor, K Zámku

Rodinný dům Pičín
8 900 000,- Kč
  • AKTIVNÍ
  • prodej
  • Rodinné domy

Pičín